Da Redação do Blog – A venda de ingressos para a festa de réveillon do Recife já começou. Pela primeira vez, a organização e produção do evento foram concedidas a uma empresa autorizada pela prefeitura. A empresa terá uma área própria à beira do palco para fins comerciais, incluindo a venda de bebidas alcóolicas.
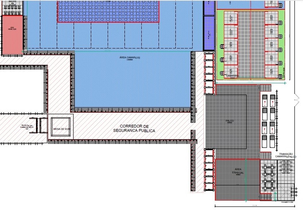
O mapa do evento mostra que haverá um corredor de segurança pública e um setor privatizado na frente do palco. A área concedida à empresa tem capacidade para receber 2,5 mil pessoas por dia. Os ingressos estão à venda online a partir de R$ 290 para os dias 29 e 30 de dezembro, e a partir de R$ 330 para o dia 31, com acesso ao open bar e área de lounge mais próxima ao palco.
Também é possível comprar ingressos na modalidade Mesa, com no mínimo quatro ingressos e a opção de adquirir mais duas senhas extras por mesa. A empresa responsável pelo evento informou que ocupará apenas 3% da área total, oferecendo uma área exclusiva com vista privilegiada, acesso à frente do palco, banheiros exclusivos, mesa de frios, praça de alimentação, serviços de segurança e garçom.
/i.s3.glbimg.com/v1/AUTH_59edd422c0c84a879bd37670ae4f538a/internal_photos/bs/2023/w/9/MUoasLRvK1yFUbFJPBsw/mapa.jpeg)
Confira, abaixo, a programação completa:
Dia 29 de dezembro
- Xand Avião;
- João Gomes;
- Raphaela Santos;
- Maestro Spok;
- Letícia Bastos.
Dia 30 de dezembro
- Ivete Sangalo;
- Nattan;
- Priscila Senna;
- Geraldinho Lins;
- Nena Queiroga.
Dia 31 de dezembro
- Alceu Valença;
- Mari Fernandez;
- Conde;
- André Rio;
- Felipe Amorim.
Novo formato
A prefeitura do Recife anunciou um novo formato de organização para o Réveillon. A empresa Talentos Promecc Ltda. foi contratada para realizar a festa deste ano e também a virada de 2024-2025. A produtora será responsável pelo palco e pelas atrações dos shows, e pagará R$ 400 mil por ano aos cofres públicos.
O custo de cada Réveillon será de R$ 7 milhões, e a empresa terá permissão para explorar parte da orla comercialmente. A expectativa é atrair 350 mil pessoas para o Recife. Além dos três dias de festa na praia do Pina, haverá outros três polos nos bairros da Lagoa do Araçá, Ibura e Morro da Conceição, mas ainda não foram divulgados detalhes sobre as atrações desses palcos.











